Avellaneda, BUENOS AIRES, Argentina
0
0 AR$
Nueva
CENTRO DE MECANIZADO CNC DE FRESADO Y MANDRILADO
Y DE PISO SERIE GAU FBC
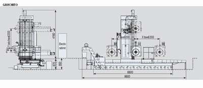
Mquinas fresadoras y mandriladoras CNC de piso
Caractersticas y aplicaciones de los centros de mecanizado CNC de fresado y mandrilado de piso:
Estas mquinas se caracterizan por sus rieles de acero templado para conseguir una alta rigidez, larga vida til y excelente precisin. Todas las unidades pueden ser equipadas con una extensa gama de accesorios opcionales, incluyendo mesas giratorias CNC, cabezales de ngulo recto, cabezales enfrentados y cabezales universales.
Son ideales para procesos de taladrado, fresado, torneado, barrenado o roscado en piezas medianas o grandes en una amplia variedad de materiales, en particular para operaciones de perforacin profunda en piezas de gran tamao.
| tem | Unidades | FBC110 | FBC130 | FBC160 | FBC130r | FBC160r |
| Dimetro del husillo | mm | ∅110 | ∅130 | ∅160 | ∅130 | ∅160 |
| Cono del husillo | ISO 7:24 No50 | ISO 7:24 No50 | ISO 7:24 No50 | ISO 7:24 No50 | ISO 7:24 No50 | |
| Dimetro del husillo fresador | mm | - | ∅221.44 | ∅260 | ∅221.44 | ∅260 |
| Velocidad del husillo | r/min | Oct-00 | Oct-00 | 10-1500 | 10-1500 | 10-1000 |
| Torque Mximo | N.m | 1300/1700 | 2500/3000 | 3500/4800 | 1855/2550 | 3000/4200 |
| rea de seccin del espoln | mm | - | - | - | 480480 | 480480 |
| Recorrido de la columna | mm | 4000 (en pasos de 1000) | ||||
| Desplazamiento vertical del cabezal (transportador) Y mm | 1500 | 1600 | 2000 (Opcional 2500,3000) | |||
| Desplazamiento del husillo | mm | 550 | 800 | 1000 | 700 | 700 |
| Desplazamiento del espoln | mm | - | - | - | 700 | 700 |
| Potencia del motor principal | kW | 17/22.5 | 22/30 | 37/51 | 37/51 | 37/51 |
| Alimentacin de corte x,y | mm/min | Ene-00 | Ene-00 | Ene-00 | Ene-00 | Ene-00 |
| Z, W | mm/min | W:1-2000 | W:1-3000 | W:1-3000 | Ene-00 | Ene-00 |
| Avance rpido | m/min | X,Y:9 W:2.4 | X,Y:8 W:3 | X,Y:9 W:3 | X,Y:6 Z,W:3 | X,Y:6 Z,W:3 |
| Capacidad del cargador | piezas | 40 | 40 | 40 | 40(60) | 40(60) |
| Especificacin del vstago | ISO 7:24 JT50 | ISO 7:24 JT50 | ISO 7:24 JT50 | ISO 7:24 JT50 | ISO 7:24 JT50 | |
| Pin estndar | LDA-50 | LDA-50 | LDA-50 | LDA-50 | LDA-50 | |
| Precisin de posicionamiento | ||||||
DATOS DEL PRODUCTOEstado:Nueva Código:Consulte Medidas del producto:Consulte Medidas del envío:Consulte Peso en kg:Consulte País de Origen:Todo el mundo Garantía:No Incluida DATOS DE LA EMPRESAEmpresa:Rubro:Ferreteras / Mquinas País:Argentina Provincia:BUENOS AIRES Localidad:Avellaneda Dirección:Hipolito Irigoyen 1261 WhatsApp:Teléfono:01142282000 DETALLES DE LA VENTAPRECIO DE LISTA:0 PRECIO OFERTA:0 AR$ Metodos de Pago:Otro Formas de envío:Consulte Embalaje de Transporte:No Incluido Tiempo de Entrega:Consulte Compra mínima:Consulte Cantidad Disponible:Consulte Otros productos en Fresadoras y Aguj manuales y CNC
Nota : Portal Industrial no avala empresas o personas o garantiza productos o servicios en ningun caso
|